Mayfair Towers

Project: Mayfair Towers

Scope: Renovation and Interior Design

Completed: March 2024

Location: Upper West Side, New York City

Client: Confidential

Contractor: East End Builders

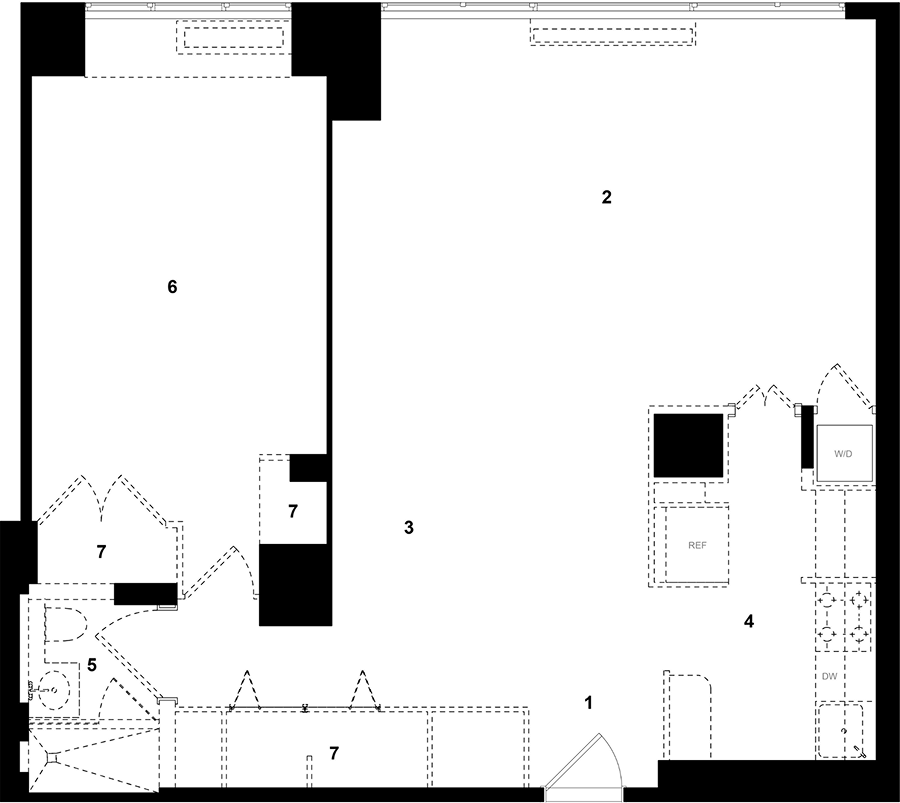
Floor Plans

Before/After Toggle Pure CSS
Before Image After Image

1 Entry
2 Living Room
3 Dining room
4 Kitchen
5 Bath
6 Bedroom
7 Closet

Before Photos

Halatsis Project Mayfair 7

Get in touch

Previous
Previous

The Belnord

Next
Next

Saint George Facade