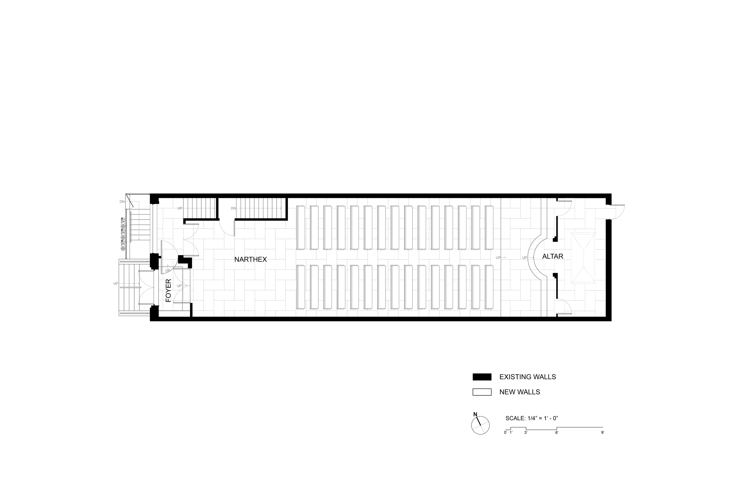
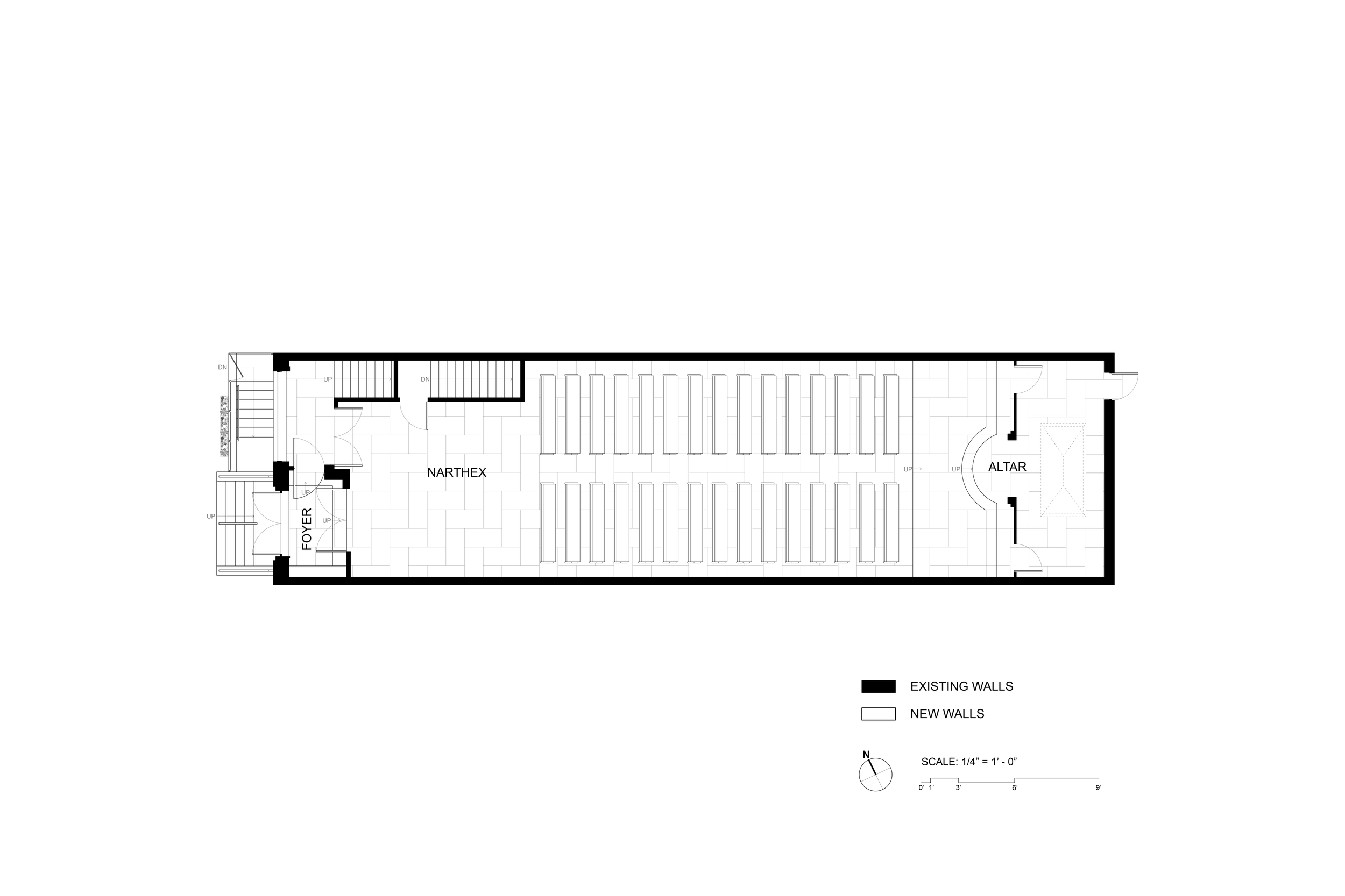
Saint George Nave

Project: Saint George Tropeoforos Greek Orthodox Church

Scope: Interior Renovation of the Sanctuary, and Altar

Completed: February, 2021

Location: Midtown, New York City

Client: Saint George Tropeoforos Greek Orthodox Church

Contractor: S&T Construction Inc

Floor Plan

Before

Get in touch

Previous
Previous

Hampton Bay development

Next
Next

Saint Nicholas Narthex